4 bedroom detached house
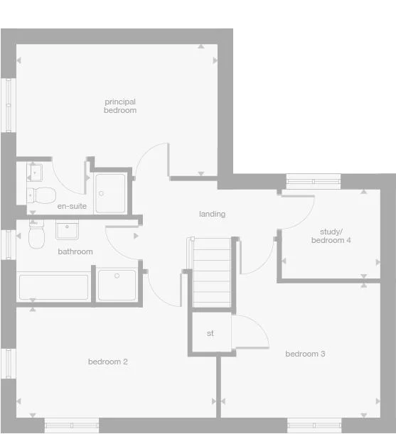
STAMP DUTY PAID AVAILABLE!^ All the main downstairs rooms are dual aspect, with a bay window in the dining room and French doors in both the lounge and the family kitchen accentuating the exceptionally light, spacious ambience. Bedroom two is also dual aspect, and the principal bedroom is en-suite. ^T&Cs Apply – Please visit our website for more information Plot 1071 Tenure: Freehold Length of lease: N/A Annual ground rent amount (£): N/A Ground rent review period (year/month): N/A Annual service charge amount (£): 157.40 Service charge review period (year/month): Yearly Council tax band (England, Wales and Scotland): G Reservation fee (£): 1000 For more information about the optional extras available in our new homes, please visit the Miller Homes website. Plot 1072 Tenure: Freehold Length of lease: N/A Annual ground rent amount (£): N/A Ground rent review period (year/month): N/A Annual service charge amount (£): 220.26 Service charge review period (year/month): Yearly Council tax band (England, Wales and Scotland): G Reservation fee (£): 1000 For more information about the optional extras available in our new homes, please visit the Miller Homes website.
- STAMP DUTY PAID AVAILABLE^
- Open plan kitchen/family room with French doors to the rear garden
- Separate dual aspect dining room with feature bay window
- Spacious dual aspect lounge
- Separate laundry room
- Principal bedroom with en-suite
- Garage plus parking
- ^T&Cs Apply - Please visit our website for more information.
- Council Tax: Please confirm the council tax band with Miller Homes
- Tenure: Please confirm if this is a freehold or leasehold property with Miller Homes

























